為了圖個出行方便,老百姓稍微有點錢都會通過貸款去買一輛小汽車,盡管車子屬于貶值品,但還是無法抑制人們對車子的向往和熱愛。買了車子就需要準備車庫,市場上的立體車庫甚是流行,是不是也要去選擇一款適合自己的呢?
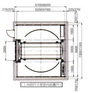
立體車庫的選擇需要謹慎,單純追求價格上的昂貴是沒有必要的,在自己的經濟范圍之內又適合自己的就可以了。首先我們要跟自己住所的物業溝通好電力問題,因為立體車庫是需要用電的,然后注意看立體車庫廠家所供應的車庫尺寸有哪幾種,到底適不適合自己的環境,適不適合自己的車子。之后要看廠家生產的車庫的質量如何,有沒有合格證書。
在眾多立體車庫廠家中挑選到合適自己的,實屬不易,所以各位精心挑選吧!咱們公司也可以做個參考哦!
掃描進入手機站